
Linea Diretta SRL ha recentemente completato un altro progetto di successo: l’allestimento dello Studio Odontoiatrica Cremonese a Cremona.
Un intervento che ha saputo valorizzare la luminosità naturale degli spazi e integrare tecnologie odontoiatriche di ultima generazione, il tutto ottimizzando i costi e rispettando le esigenze del cliente.
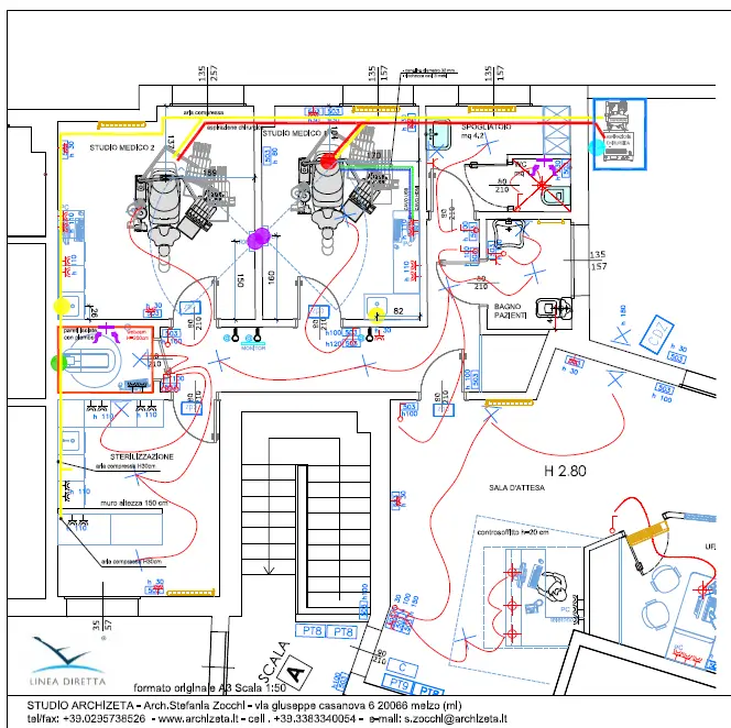
Valorizzazione degli spazi esistenti
Situato al quarto e ultimo piano di un edificio ristrutturato, lo studio Odontoiatrica Cremonese gode di una luminosità eccezionale, grazie alla terrazza adiacente alla sala d’attesa.


Il cliente desiderava minimizzare le modifiche strutturali, pertanto abbiamo sviluppato soluzioni impiantistiche intelligenti, che hanno permesso di ottimizzare i costi e ridurre i tempi di realizzazione.
La sfida era integrare le nuove attrezzature in un ambiente parzialmente preesistente, con tramezze e pavimentazioni già installate.
La nostra esperienza ha permesso di superare gli ostacoli, garantendo un risultato finale armonioso e funzionale.
Personalizzazione e comfort
Particolare attenzione è stata dedicata alla scelta dei riuniti odontoiatrici, con tappezzeria personalizzata per offrire il massimo comfort ai pazienti e un tocco distintivo all’ambiente.





Tecnologia odontoiatrica all’avanguardia
Grazie alla consolidata partnership con Carestream, abbiamo allestito lo studio con le più avanzate tecnologie del settore, tra cui l’OPT 3D cone-beam Cs 8100, i radiografici endorali Cs 2100, la telecamera endorale e il sistema ai fosfori. Queste attrezzature garantiscono diagnosi precise e trattamenti efficaci.
Sterilizzazione e igiene
La sala di sterilizzazione è stata equipaggiata con autoclave, sigillatrice e vasca a ultrasuoni, per assicurare i massimi standard di igiene e sicurezza.