Siamo a Roma e lo studio dentistico della dott.ssa Bosco rappresenta il “cambio generazionale” per eccellenza, poiché siamo partiti dallo studio esistente del dott. Riccardo, il padre, che aveva uno studio mono-poltrona essenziale e ormai datato.



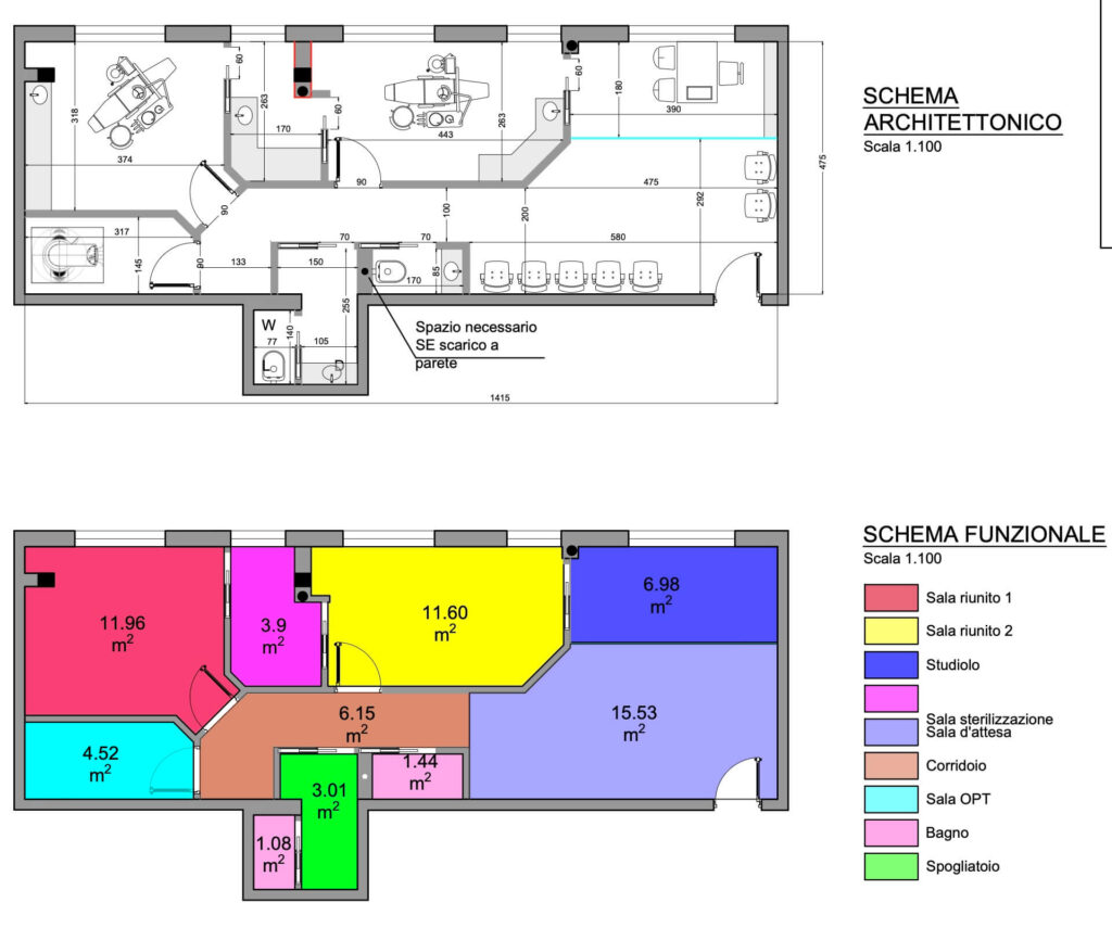
Siamo arrivati ad uno studio dentistico moderno, con 2 sale riunito ed un locale OPT che può ospitare anche il braccio cefalometrico.
Il nuovo studio è stato curato nei minimi dettagli grazie all’occhio vigile dell’ingegnere marito della dott.ssa con cui abbiamo collaborato per tutto il periodo di cantiere.
Il risultato ottenuto, oltre ad essere funzionale è una vera e propria boutique odontoiatrica in cui risulta evidente la cura dei particolari e dei materiali scelti.
I giochi di luce che accolgono il paziente in sala d’attesa si sviluppano poi per l’intero corridoio creando degli intrecci di luce che esprimono, oltre ad un design futuristico, l’innovazione portata nel proprio studio odontoiatrico dalla dottoressa.
Un vero e proprio passaggio di testimone.




Linea Diretta ci ha fornito tutti i macchinari / attrezzature odontoiatriche per lo studio odontoiatrico da poco ristrutturato.
Ottima squadra, sempre pronti a rispondere a qualsiasi esigenza da noi richiesta.
Macchinari ottimi e personalizzabili a seconda delle necessità del cliente.
Il grande punto di forza di Linea Diretta è l’assistenza durante la scelta / progettazione / installazione dei loro macchinari; sono sempre stati disponibili e pronti ad aiutarci.
Simone & Elena (Google Reviews)